Apartamento Duplex T4 Novo na Rua Bartolomeu Dias, em Belém ? conforto, modernidade, luz natural e espaço em Belém

Lisboa - Belém

1 390 000€

Apartamento Duplex T4 Novo na Rua Bartolomeu Dias, em Belém ? conforto, modernidade, luz natural e espaço em Belém

Veja este imóvel virtualmente.

Partilhar em:

Detalhes do Imóvel

  • Referência :

  • Cert. Energético:

  • Área Bruta :

  • WC :

  • C0223-08668

  • Em Curso / Isento

  • 250

  • 4

  • Preço :

  • Quartos :

  • Ano Construção :

  • 1 390 000€

  • 4

  • 2024

  • Tipo de Imóvel :

  • Negócio :

  • Apartamento

  • Vender

Descrição

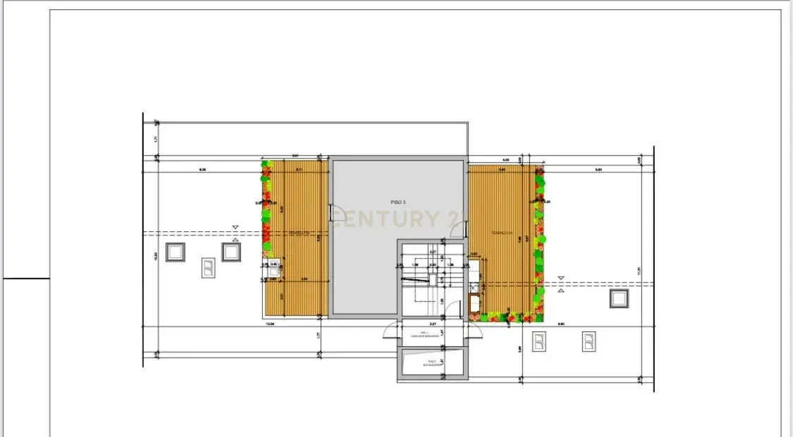
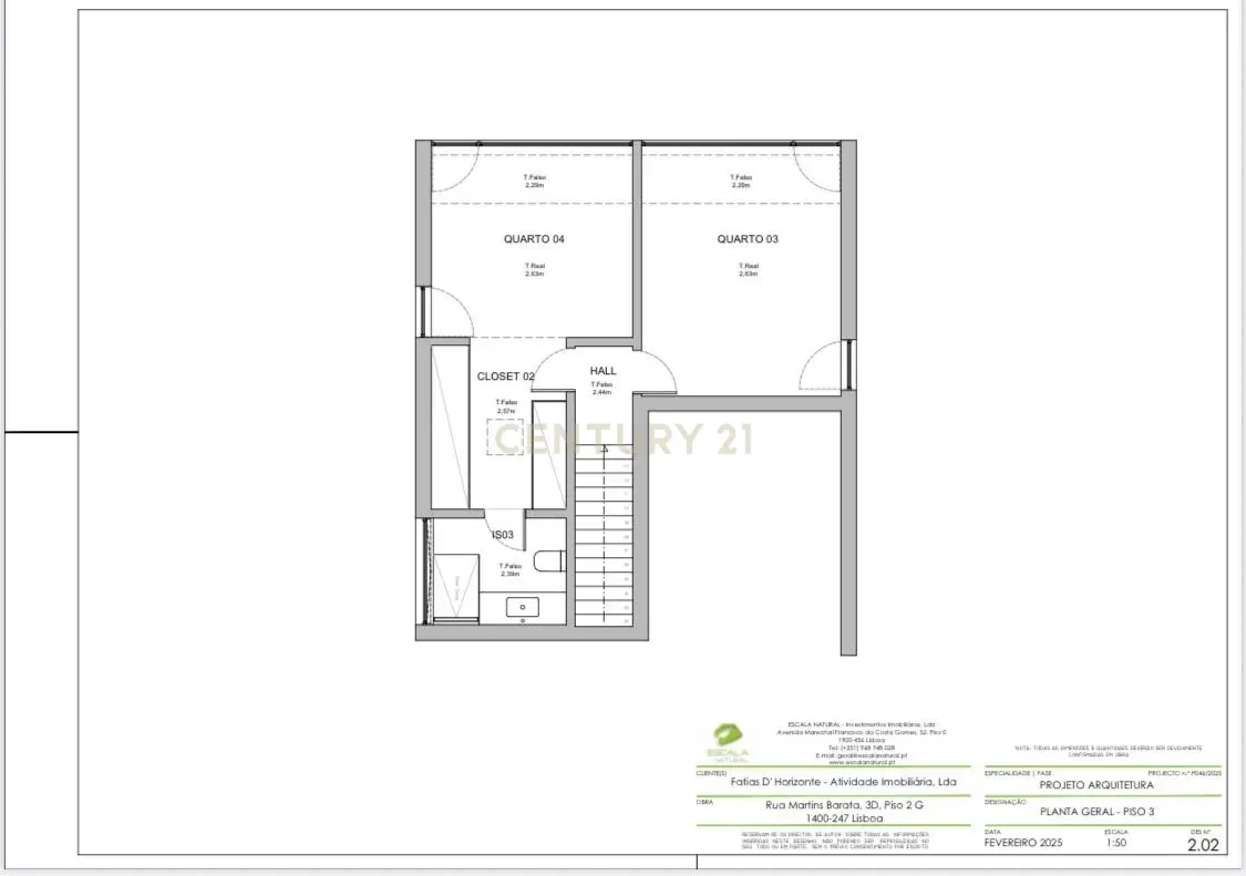
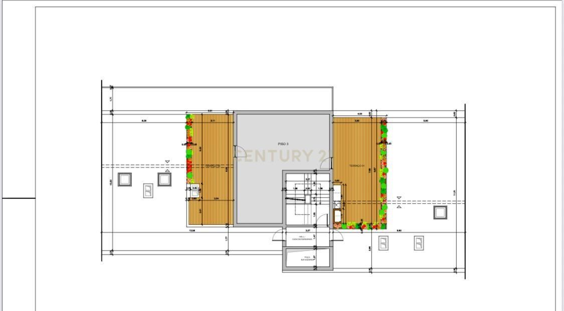
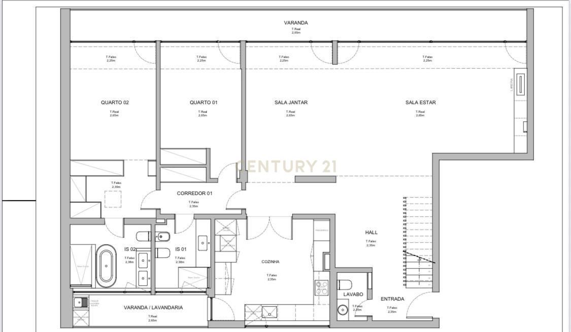
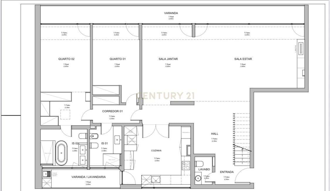
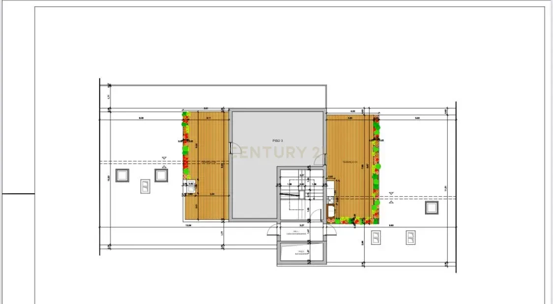
Descubra um apartamento duplex T4 totalmente novo, com 284m², que redefine conforto, modernidade e sofisticação numa das zonas mais tranquilas de Lisboa Belém. No primeiro piso, o elegante hall de entrada conduz a uma sala ampla de 55m², banhada por luz natural e com acesso a varanda com vista rio. O ambiente é perfeito para quem valoriza modernidade, conforto e espaços generosos. A lareira de bioetanol acrescenta charme, ambiente e um toque moderno às zonas de estar e jantar. A cozinha premium, totalmente equipada com eletrodomésticos de alta gama (frigorífico duplo, placa de indução, forno, micro-ondas e adega), integra-se harmoniosamente à sala através de portas duplas, que podem ser usadas para integrar a sala de jantar ou para criar privacidade ao ambiente. A lavandaria garante funcionalidade com área de arrumação e máquina de lavar/secar. Ainda neste piso: . Quarto de 18m² com roupeiro e varanda . Casa de banho ampla e elegante . Suíte com 18m², walking closet, varanda e casa de banho de luxo com duche e banheira de imersão independente. A marcenaria em laca fosca, roupeiros com iluminação interna e o pavimento em carvalho multilayers elevam a sensação de qualidade e conforto. A escada em madeira com degraus suspensos reforça a estética contemporânea. O piso superior oferece uma suíte exclusiva com walking closet e uma casa de banho iluminada naturalmente. Este quarto abre-se para um terraço privativo de 28m², ideal para jacuzzi, mini-piscina ou zona de descanso com vista para o Rio Tejo. Um segundo quarto atualmente preparado como sala de cinema/escritório dá acesso a um terraço de 33m², perfeito para criar uma área gourmet ou um espaço de lazer totalmente personalizado. . 284m² totais (200m² de área bruta privativa) . 2 suítes e 2 quartos . 4 casas de banho . 2 lugares de garagem . Arrecadação . Edifício com elevador e vídeo porteiro . Localização privilegiada No coração de Belém, junto ao Colégio Bom Sucesso, zonas verdes, comércio, transportes, Mosteiro dos Jerónimos, Torre de Belém e a poucos passos do Tejo. Um estilo de vida tranquilo, luminoso e sofisticado difícil de encontrar em Lisboa. Se quiser, também posso criar uma versão ainda mais persuasiva para anúncio premium (que costuma gerar mais contactos).

Localização Lisboa - Belém

Vídeo

Adicionado: 17-09-2025

Propriedades Relacionadas