Quinta do Relógio: Palacete Histórico do Século XIX à Beira-Rio em Paço de Arcos, Oeiras

Oeiras - Oeiras e São Julião da Barra, Paço de Arcos e Caxias

12 500 000€

Partilhar em:

Detalhes do Imóvel

  • Referência :

  • Cert. Energético:

  • Área Bruta :

  • WC :

  • ATR/201

  • Em Curso / Isento

  • 1616

  • 7

  • Preço :

  • Quartos :

  • 12 500 000€

  • 15

  • Tipo de Imóvel :

  • Negócio :

  • Moradia

  • Vender

Descrição

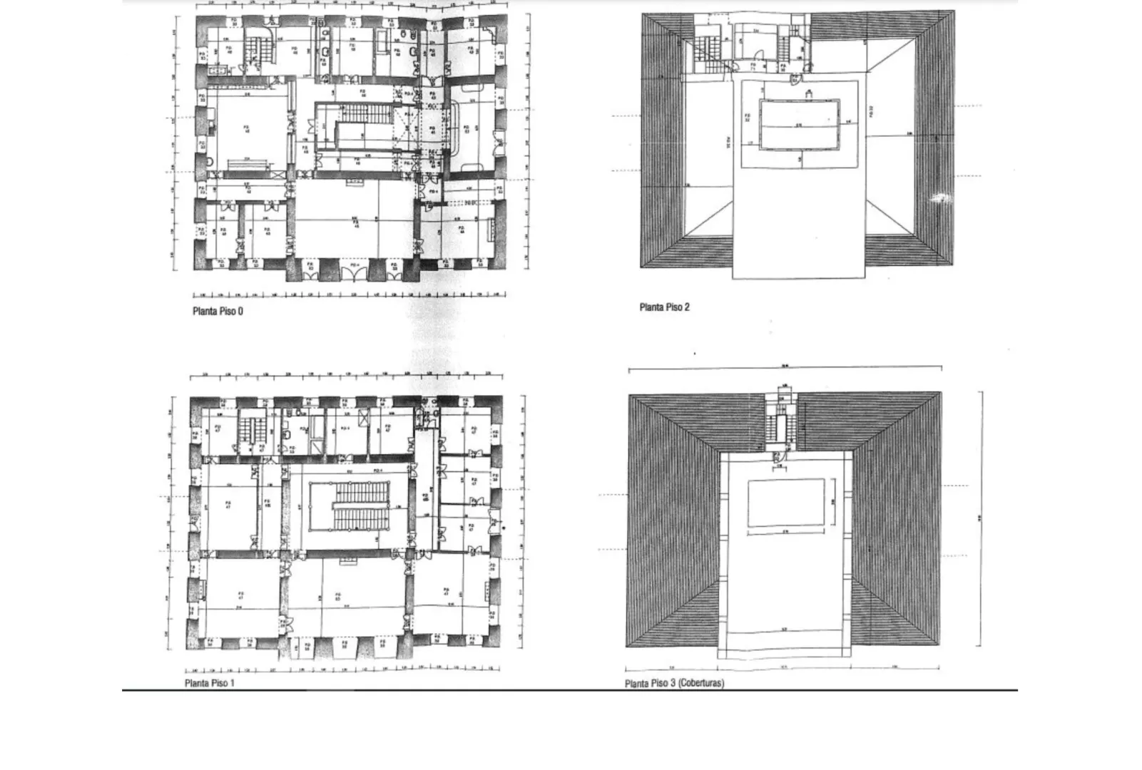
Bem-vindo à Quinta do Relógio, um extraordinário palacete do século XIX situado na tranquila frente ribeirinha de Paço de Arcos, uma das localizações mais prestigiadas do concelho costeiro de Oeiras. Projetada por volta de 1860 pelo arquiteto Cinatti de Siena, esta propriedade histórica oferece cerca de 1.616 m² de área interior, distribuída por 15 quartos e quase 37 divisões, envolvidas por aproximadamente 5.600 m² de jardins em socalcos. Toda a propriedade está murada, garantindo total privacidade e exclusividade. De forma notável, a quinta é autossuficiente em água, beneficiando de um aqueduto histórico de águas pluviais que passa por baixo da Estrada Marginal e segue até ao mar um elemento arquitectónico e técnico raro em propriedades privadas. No interior, o palacete revela a sua herança neoclássica através da fachada simétrica, do elegante alpendre e de um imponente hall iluminado por claraboia. A escadaria principal conduz aos pisos superiores, enquanto o piso térreo integra um requintado salão de jantar com mobiliário em jacarandá do século XIX, uma biblioteca sofisticada e várias salas sociais. No piso superior, três elegantes salões incluindo uma sala estilo café abrem diretamente para terraços com vistas sobre os jardins maduros e o reluzente rio Tejo, onde a propriedade usufrui de cerca de 145 metros de frente ribeirinha. Os jardins oferecem um ambiente de serenidade, preenchidos por araucárias, plátanos e dracenas centenárias. A icónica Torre do Relógio, as cavalariças, a casa de pessoal, as garagens e os espaços exteriores ajardinados completam este conjunto arquitetónico único. Paço de Arcos é uma zona costeira altamente procurada, conhecida pela atmosfera tranquila, excelente gastronomia, vida cultural e acessibilidade excecional. A quinta encontra-se a 30 minutos do Aeroporto de Lisboa e a cerca de 15 km do centro da capital, proporcionando o equilíbrio ideal entre privacidade, elegância e conveniência. A propriedade está protegida pelo plano de salvaguarda patrimonial de Oeiras e beneficia de isenção total de IMI e IMT. Oferece ainda uma notável possibilidade de ampliação da construção existente, sendo perfeita para um hotel boutique de luxo, residência diplomática, fundação cultural ou uma moradia privada de carácter verdadeiramente único. A Quinta do Relógio é uma das propriedades históricas mais distintivas de Portugal uma fusão rara entre grandeza arquitetónica, posição privilegiada à beira-rio e potencial excecional.

Localização Oeiras - Oeiras e São Julião da Barra, Paço de Arcos e Caxias

Lamentamos, o proprietário não disponibilizou a localização do imóvel.

Vídeo

Lamentamos, o proprietário não disponibilizou nenhum vídeo.

Adicionado: 21-11-2025

Propriedades Relacionadas